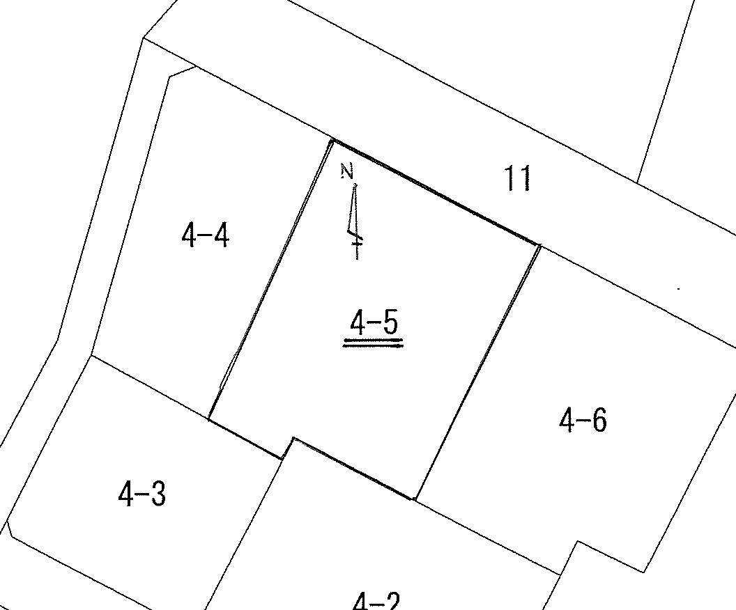
日光市 稲荷町2丁目 4-5 東武日光駅約260m

#
管理番号
2104
価格
1478万円(20万円)
土地面積
244.38㎡(73.92坪)

・建ぺい率/80% ・容積率/300% ・都市計画/非線引き区域 ・用途地域/近隣商業地域 ・地目/宅地 ・現況/更地(駐車場として賃貸中) ・道路/北側4m 日光市道(日)34078号線 ・設備/公営水道、公共下水道 ・引渡し/要相談 ・取引態様/仲介

日光市 稲荷町2丁目
日光市 稲荷町2丁目
日光市 稲荷町2丁目
日光市 稲荷町2丁目
日光市 稲荷町2丁目
日光市 稲荷町2丁目
日光市 稲荷町2丁目
日光市 稲荷町2丁目
日光市 稲荷町2丁目

東武日光駅 徒歩約3分(約260m)の好立地、観光拠点・東武日光駅至近、集客力を活かせる立地です・・

この物件について問い合わせる